Mở bán căn hộ cao cấp dự án chung cư Diamond Flower Tower
Tòa tháp hoa kim cương Handico 6
• Dự án nằm tại vị trí đắc địa ngã tư Lê Văn Lương - Hoàng Đạo Thúy, thừa hưởng cơ sở hạ tầng hiện đại của KĐT Trung Hòa Nhân Chính
• Diện tích căn hộ đa dạng từ 119m2 - 174m2
• Giá bán vô cùng hợp lý chỉ từ 31,3 Tr/m2 ( đã bao gồm VAT )
• Bàn giao Quý 4/2014
• Tiến độ đóng tiền cực kỳ linh hoạt chia làm 3 đợt
• Ngân hàng hỗ trợ vay vốn lên tới 70% giá trị căn hộ, lãi suất ưu đãi
• Liên hệ ngay để được nhận thư mời dự lễ mở bán chính thức: 0942.755.688

1. Tổng quan dự án
- Tên dự án: Tổ hợp trung tâm thương mại, căn hộ cao cấp Tháp hoa kim cương - Diamond Flower Tower
- Chủ đầu tư: Công ty cổ phần đầu tư và phát triển nhà Hà Nội - Handico 6
- Vị trí: Lô C1 ngã tư Hoàng Đạo Thúy - Lê Văn Lương, KĐT Trung Hòa Nhân Chính, Cầu Giấy, Hà Nội - Dự án là một tòa tháp cao 30 tầng với 3 tầng hầm
2. Vị trí và tiện ích
- Phía Đông Bắc giáp mặt đường Hoàng Đạo Thúy
- Phía Đông Nam giáp mặt đường Lê Văn Lương
- Dự án nằm tại vị trí vàng của khu đô thị Trung Hòa Nhân Chính đã được quy hoạch với cơ sở hạ tầng đồng bộ, với các tiện ích xung quanh như trường cấp 1, 2, 3, bệnh viện, khu siêu thị mua sắm và giải trí Ocean, BigC...
- Liên kết dễ dàng với các khu đô thị xung quanh như Royal City, Hapulico..
- Từ dự án có thể di chuyển thuận tiện vào trung tâm thành phố và các khu Hà Đông, Mỹ Đình, Thanh Xuân, Cầu Giấy...

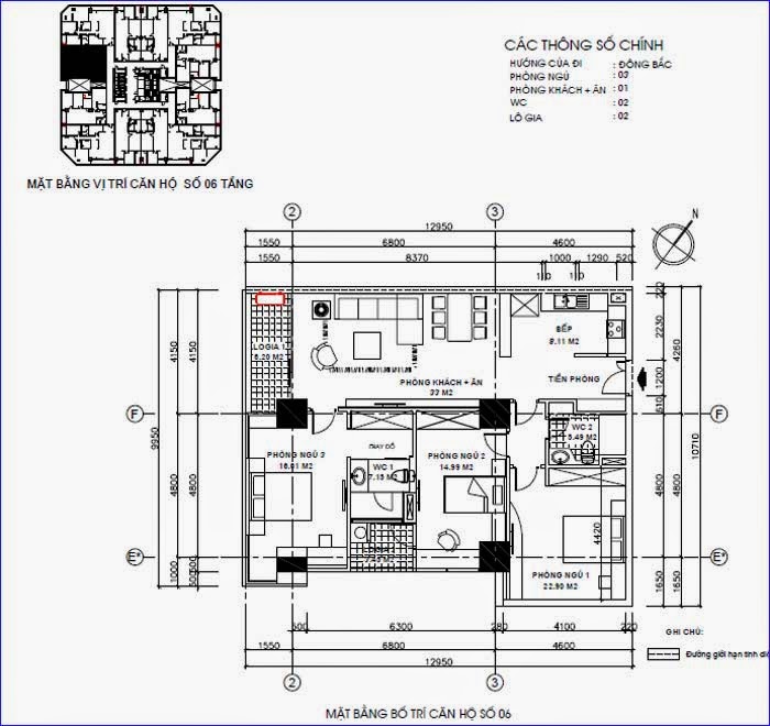
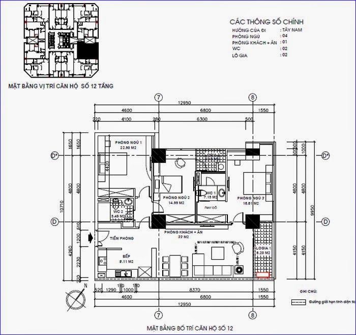
3. Thiết kế và diện tích căn hộ
- Tầng hầm: 3 tầng hầm được sử dụng để xe và không gian kỹ thuật
- Tầng 1 có sảnh vào là phòng hội trường, siêu thị mini..
- Tầng 2 - 5 là trung tâm thương mại, dịch vụ, tiện ích công cộng
- Tầng 6 - 12 là khu văn phòng
- Tầng 13 - 30 là các căn hộ để ở, thiết kế 12 căn hộ / mặt sàn. Bao gồm 3 thang máy riêng biệt so với khu văn phòng và dịch vụ.
- Các diện tích căn hộ từ : 119 - 120 - 125 - 162 - 174m2
- Căn hộ Penthouse: 497 - 584m2

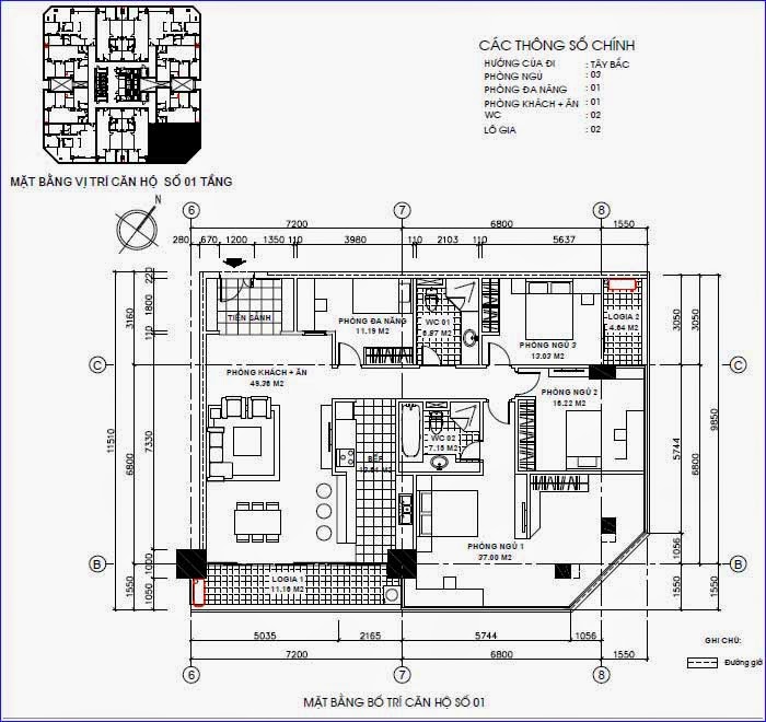
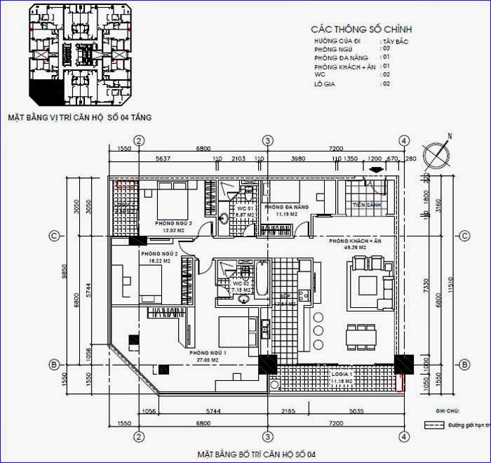
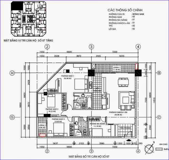
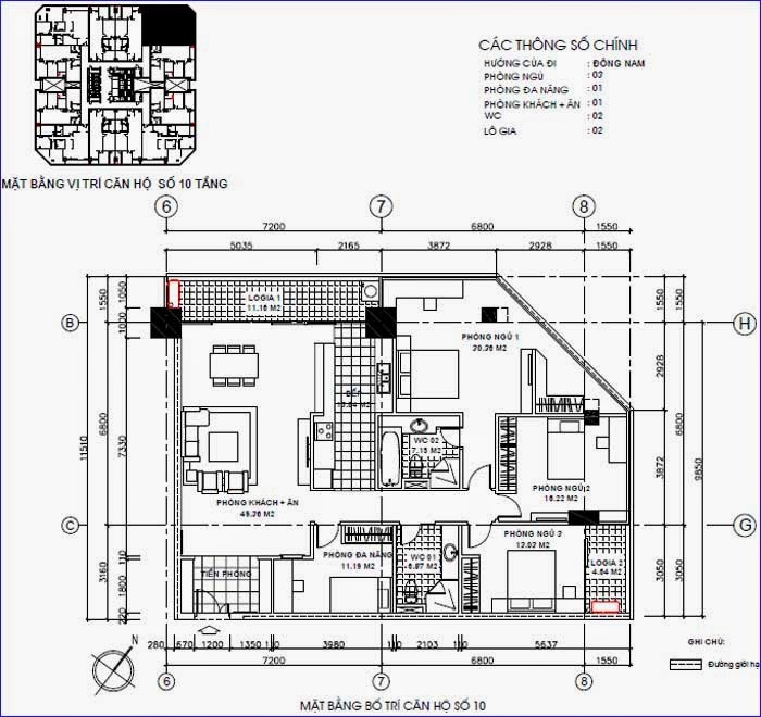
Căn hộ số 01 - 04 - 07 - 10 ( DT 163.8 - 172.96m2 ) 



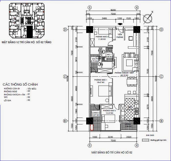
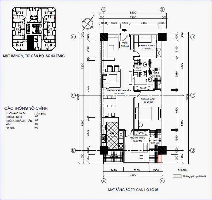
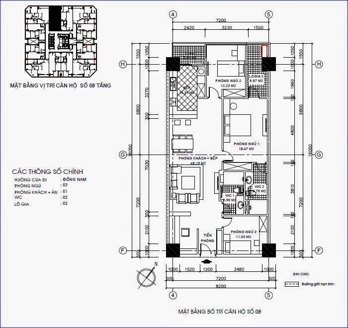
Căn hộ số 02 - 03 - 08 - 09 ( DT 120.18m2 ) 



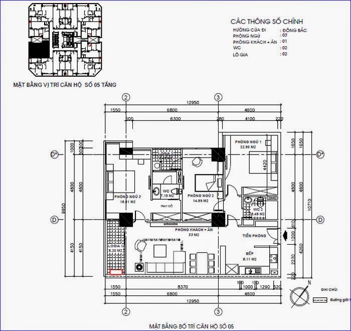
Căn hộ số 05 - 06 - 11 - 12 ( DT 118.76 - 124.64m2 ) 



4. Giá bán căn hộ:
- Giá bán chính thức từ: 31,3 Tr/m2 (Giá bán đã bao gồm thuế VAT)
- Ngân hàng MB và Liên Việt PostBank hỗ trợ khách hàng vay để mua căn hộ tối đa lên tới 70% giá trị căn hộ, lãi suất ưu đãi chỉ 8%/năm, thủ tục đơn giản.
5. Tiến độ thanh toán:
Tiến độ thanh toán chia làm 3 đợt linh hoạt cho quý khách hàng
- Đợt 1: 30% sau khi ký hợp đồng mua bán
- Đợt 2: 20% vào tháng 5/2014
- Đợt 3: 48% khi nhận thông báo bàn giao căn hộ vào Quý 3/2014
- Đợt 4: 2% còn lại khi nhận sổ đỏ
6. Thông tin liên hệ
Ngay lúc này quý khách có nhu cầu tìm hiểu thông tin dự án, đặt mua căn hộ, hãy nhấc máy liên hệ Ban quản lý dự án: 0942.755.688